Trilocale in vendita

Cesena, Via Tullio Battelli - Martorano
€ 270.000
3 locali 3 locali
136 Mq 136 Mq
2 bagni 2 bagni

Trilocale in vendita

Cesena, Via Tullio Battelli - Martorano

Descrizione annuncio

MARTORANO:

In un recente quartiere residenziale di Martorano, in via secondaria dal traffico limitato, è in vendita appartamento situato in un condominio del 2011.

La palazzina è dotata di termocappotto di 10cm: inoltre, per una migliore prestazione energetica, sono installati i pannelli solari per la produzione di acqua calda e riscaldamento, per cui queste utenze sono incluse nelle spese condominiali.

Inoltre, nelle spese comuni, sono conteggiate luce e pulizia delle parti comuni, giardiniere, assicurazione e amministratore.

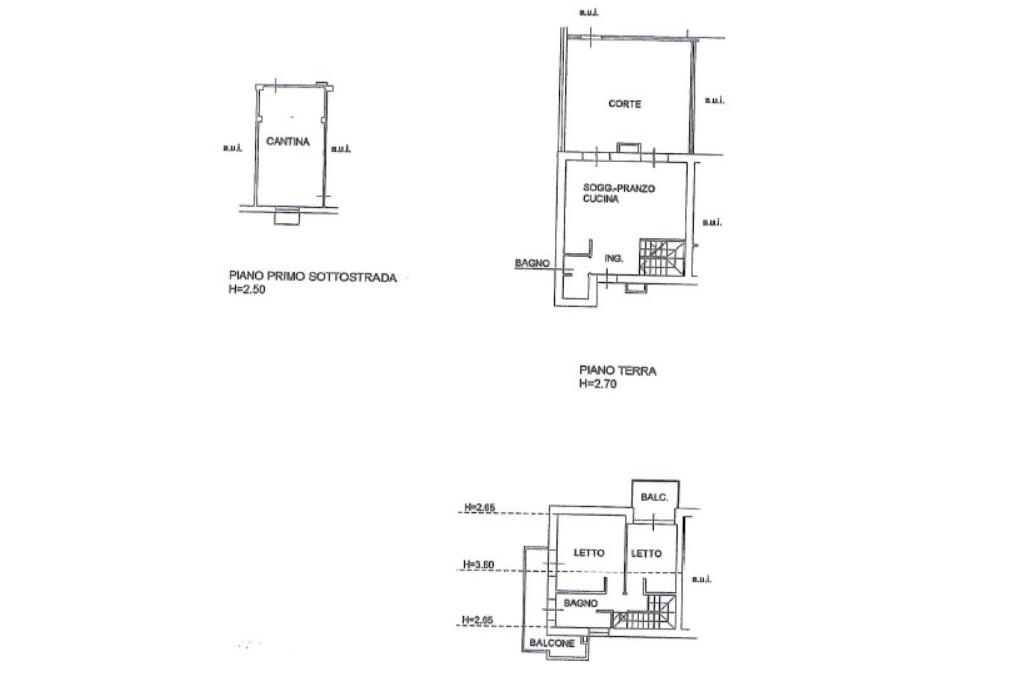
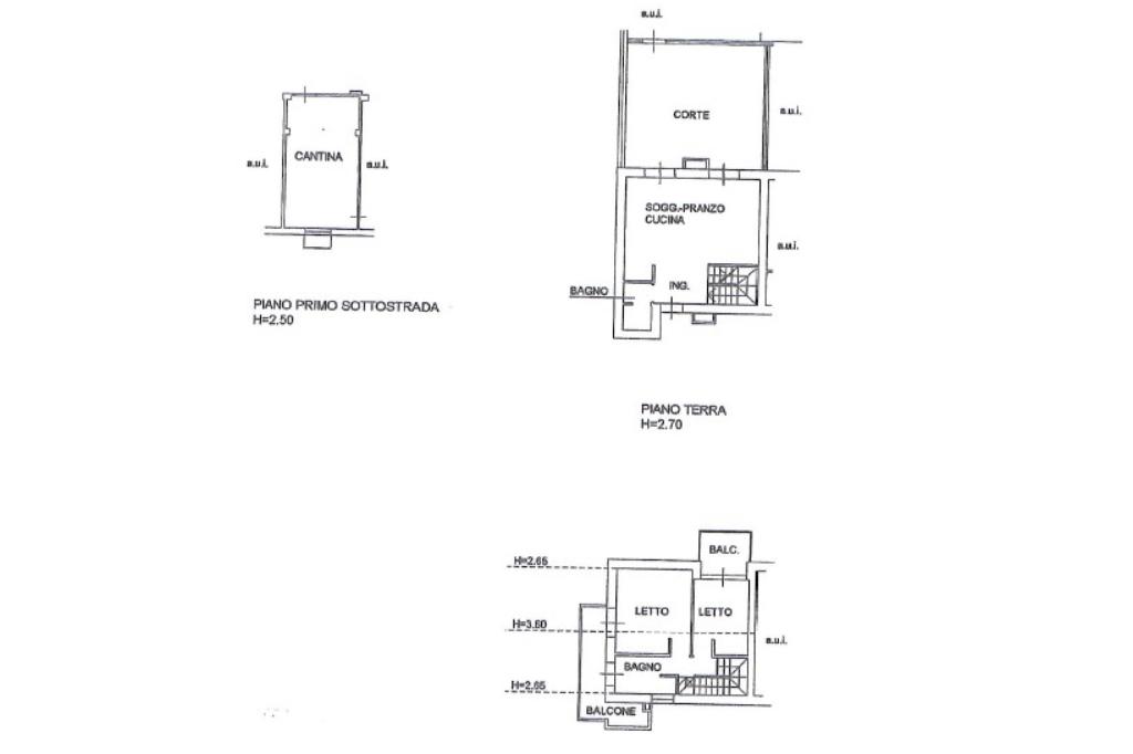
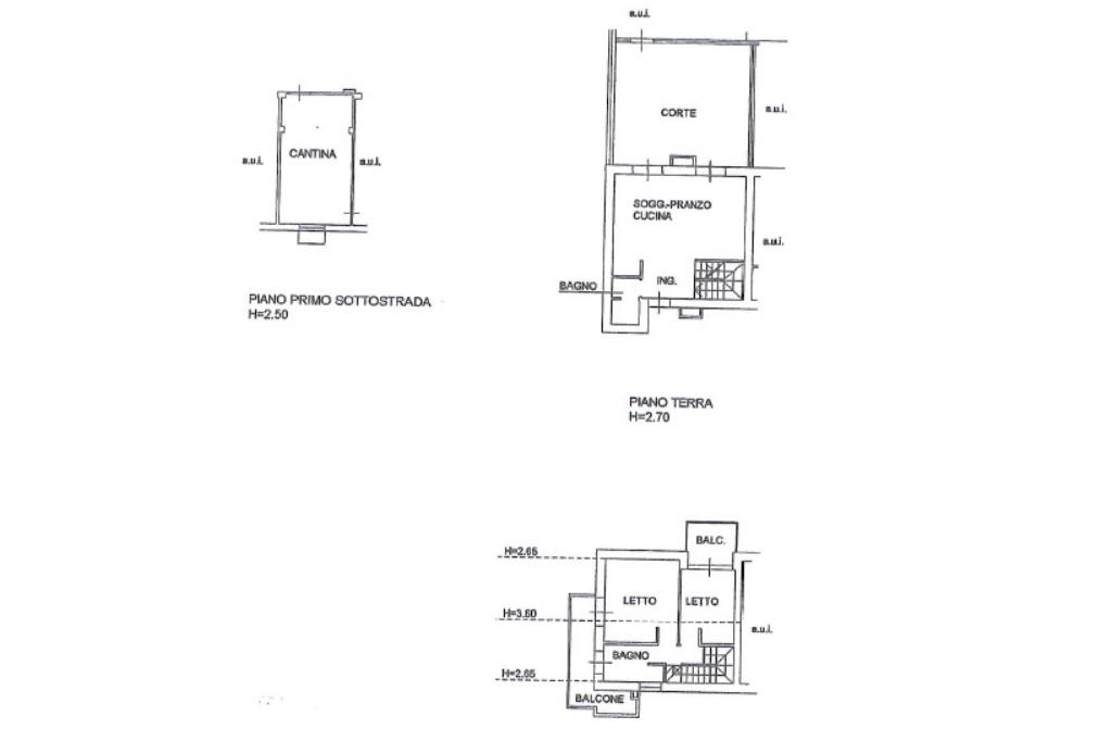
L'immobile si sviluppa su due livelli ben distribuiti: la presenza del sistema di riscaldamento e raffreddamento a pavimento è l'ideale per chi cerca comfort e funzionalità; da sottolineare anche la presenza, su ogni piano, dell'impianto di aria condizionata.


Dal proprio ingresso indipendente, accessibile sia dalla corte privata attraverso la porta-finestra, sia dal curato viale condominiale per mezzo del portone blindato, al piano terra troviamo la zona giorno ampia e luminosa, arredata in stile moderno.

Sullo stesso piano troviamo anche un comodo bagno di servizio, con antibagno munito di porta scorrevole.

Al piano superiore troviamo una camera matrimoniale e una camera singola, entrambe con affaccio sul balcone privato: le travi in legno chiaro, così come la pavimentazione in parquet, rendono gli ambienti più confortevoli e facilmente personalizzabili, adattandosi ad ogni tipo di mobilio.

Sul piano c'è anche il bagno principale con box doccia, anch'esso dotato di porta-finestra.

Completano la soluzione la cantina con zona lavanderia e il garage, tra loro collegate e situate al piano interrato: infine vi è anche il posto auto di proprietà, di fronte all'ingresso privato.

Una soluzione in ottima classe energetica e comprensiva di ogni comfort, perfetta per chi desidera vivere in un contesto recente senza rinunciare all'indipendenza.

CONTATTA LA NOSTRA AGENZIA PER CHIEDERE INFORMAZIONI O FISSARE UN APPUNTAMENTO!

SEGUICI SUI SOCIAL PER RIMANERE AGGIORNATO SULLE ULTIME NOVITA' IMMOBILIARI:

Facebook -> 'GRUPPO TECNOCASA CESENA TORRE DEL MORO'

Instagram -> 'TECNOCASACESENA_TORREDELMORO'

Mostra tutto

Nelle vicinanze

Trasporto pubblico Trasporto pubblico
stazione di Cesena
stazione di Cesena
2,4 Km
Ex Mercato
Ex Mercato
1,7 Km
Università
Università
2,3 Km
Ricariche auto elettriche Ricariche auto elettriche
De Stefani S.p.A. - Concessionaria Mercedes-Benz e smart | ENELX
590 m
Eneldrive Centro Commerciale Lungo Savio
2,6 Km
Eneldrive Parcheggio Ippodromo
2,9 Km
EnelX EVA+ Cesena Centro Commerciale Montefiore
2,9 Km
Eneldrive Centro Commerciale Montefiore
3,0 Km
Scuole Scuole
Scuole
1,1 Km
Facoltà di Agraria
1,2 Km
Campus di Scienze degli Alimenti
1,2 Km
Seconda Facoltà di Ingegneria
1,6 Km
Scuola Primaria "Le Vigne"
2,1 Km
Farmacia Farmacia
Farmacia
2,3 Km
Farmacia Villa San Giuseppe
2,5 Km
Parafarmacia Conad
2,9 Km
Supermercati Supermercati
Supermercati
500 m
Punto sma
2,4 Km
Ipercoop
2,5 Km
Conad
2,9 Km
Negozi Negozi
Negozi
1,8 Km
NaturaSi
2,9 Km
Bar Bar
Bar
520 m
Circolo ZeroFurbi
2,1 Km
Casa del Popolo / Dolcevita Cafè
2,1 Km
Stop & Go Cafè
2,5 Km
Caffe Capolinea
2,5 Km
Ristoranti Ristoranti
Pizzeria Jonny
2,4 Km
America Graffiti
2,6 Km
Le Scuderie
2,7 Km
Dalla Saraghina Fritto e Piadina
2,7 Km
QBio
2,8 Km
Mostra tutto

Caratteristiche

Rif.:
61099061
Piano:
Terra di 2
Totale piani:
2
Box:
1
Posti auto:
1
Balconi:
1
Mostra tutto
Prezzo Prezzo
€ 270.000
Rata mutuo Rata mutuo
€ 1.198 / mese
Spese annue Spese annue
€ 1.700
Proponi il tuo prezzoProponi il tuo prezzo
Immobile valutato con TecnoValore

Classe Energetica

B
B
B
B
B
B
B
B
B
Anno di costruzione:
2011
Riscaldamento:
Centralizzato
Tipo impianto:
A pavimento
Tipo alimentazione:
Pannelli

Ti interessa visionare l'immobile?

Fissa un appuntamento  Fissa un appuntamento

Richiedi informazioni

* Questi campi sono obbligatori

Calcola il tuo mutuo

Semplice e senza impegno
Anticipo

( % )
Mutuo

( % )

pochi semplici passi

inserisci i tuoi dati
Questionario completato
Grazie per aver richiesto un appuntamento senza impegno con un nostro Consulente del Credito e Assicurativo.

Hai inserito correttamente tutti i dati necessari e a breve riceverai una e-mail con un link da convalidare per inviare i tuoi dati.
Affiliato
Studio Torre Srl
Via Carlo Cattaneo, 430 47522 Cesena (FC)

Il nostro staff


  • Greta Brunelli
    Affiliata

  • Ferdinando Formisano
    Collaboratore

  • Enea Ricci
    Collaboratore

  • Manuel Rizzo
    Collaboratore
Via Carlo Cattaneo, 430 47522 Cesena (FC)
Zona: Torre del Moro - Martorano - Pievesestina - Diegaro - San Vittore - Borello - Santa Maria Nuova
Mostra su mappa
Orari: Lun-Ven 9:00-13.00/15:30-20.00 Sab 9:00-13.00
Affiliato
Studio Torre Srl
Via Carlo Cattaneo, 430 47522 Cesena (FC)

2025 Tecnocasa Franchising S.p.A. - P. IVA 08365160152 - Via Monte Bianco 60/A 20089 Rozzano (MI). Ogni agenzia ha un proprio titolare ed è autonoma. Privacy policy | Policy utilizzo | Cookie policy