Trilocale in vendita

Bertinoro, Via spada - Santa Maria Nuova
€ 240.000
3 locali 3 locali
110 Mq 110 Mq
2 bagni 2 bagni

Trilocale in vendita

Bertinoro, Via spada - Santa Maria Nuova

Descrizione annuncio

S. MARIA NUOVA:

In un recente quartiere residenziale di Santa Maria Nuova, in via secondaria dal traffico limitato, è in vendita appartamento situato in un condominio del 2006 con termocappotto esterno.

Le spese comuni ammontano a circa 1.000€/annui, in quanto l'impianto dell'acqua è centralizzato e va a consumo reale: inoltre sono conteggiate luce e pulizia delle parti comuni, assicurazione e amministratore.

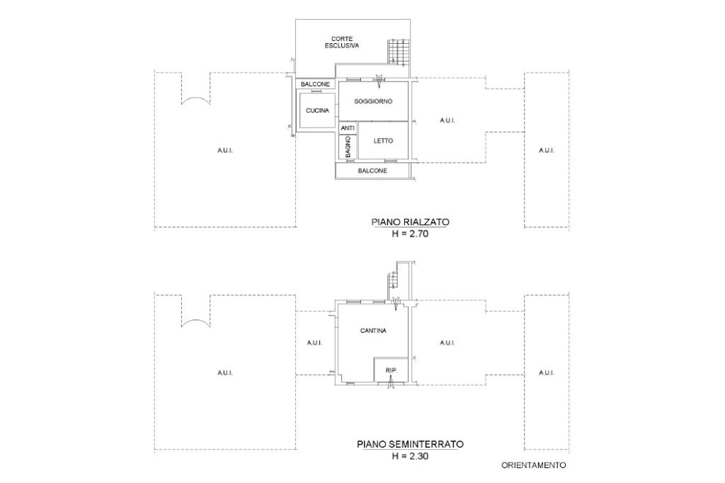
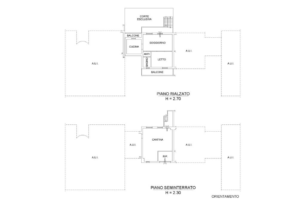
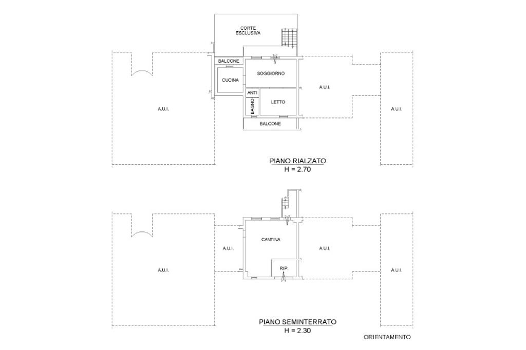
L’immobile è libero cielo-terra, come una villetta a schiera: si sviluppa su due livelli abitativi ben distribuiti, mentre al piano seminterrato, accessibile dall'ingresso esterno e non collegato all'abitazione, troviamo la zona servizio.


Dall'ingresso indipendente ci accoglie il grazioso giardino, in cui vi è un angolo Zen con un laghetto con ninfee e carpe.

Scendendo le scale, accediamo alla tavernetta finestrata, in cui è ricavato un'ampia sala hobby; adiacente vi è anche la lavanderia e l'ingresso al garage.

Salendo le scale, al piano rialzato troviamo la zona giorno ampia e luminosa, arredata in stile moderno: è divisa in tre ambienti separati (cucina abitabile, salone e angolo tv), resi luminosi dalla presenza di un balcone e un terrazzo.

Sullo stesso piano troviamo anche un comodo bagno di servizio, con antibagno munito di porta scorrevole.

Al piano superiore troviamo la zona mansardata, finestrata e confortevole, divisa in cinque ambienti separati da porte scorrevoli: le travi in legno e il parquet impreziosiscono la soluzione.

Qui vi sono una camera matrimoniale con spaziosa cabina armadio, una camera singola e uno studio: le stanze sono servite da un bagno con box doccia, anch'esso dotato di finestra.

L'immobile, essendo del 2006, rimane in buona classe energetica, godendo anche della presenza di impianto di climatizzazione: è perfetta per chi desidera vivere in un contesto recente senza rinunciare all'indipendenza.

CONTATTA LA NOSTRA AGENZIA PER CHIEDERE INFORMAZIONI O FISSARE UN APPUNTAMENTO!

SEGUICI SUI SOCIAL PER RIMANERE AGGIORNATO SULLE ULTIME NOVITA' IMMOBILIARI:

Facebook -> 'GRUPPO TECNOCASA CESENA TORRE DEL MORO'

Instagram -> 'TECNOCASACESENA_TORREDELMORO'

Mostra tutto

Nelle vicinanze

Trasporto pubblico Trasporto pubblico
San Pietro in Guardiano
San Pietro in Guardiano
2,0 Km
Scuole Scuole
Scuola dell'infanzia
500 m
Scuola elementare
510 m
Scuola Media
730 m
Scuole
2,9 Km
Farmacia Farmacia
Farmacia Santa Maria Nuova
720 m
Supermercati Supermercati
Conad
780 m
Negozi Negozi
Negozi
830 m
Panificio Costanzo
1,3 Km
Bar Bar
Cocco's bar
600 m
Ristoranti Ristoranti
Il Mangione
830 m
Ristorante Ciao
1,8 Km
Mostra tutto

Caratteristiche

Rif.:
61102469
Piano:
Su più livelli di 2
Totale piani:
2
Box:
1
Posti auto:
1
Balconi:
1
Mostra tutto
Prezzo Prezzo
€ 240.000
Rata mutuo Rata mutuo
€ 1.121 / mese
Spese annue Spese annue
€ 1.000
Proponi il tuo prezzoProponi il tuo prezzo
Immobile valutato con T·Valuta

Classe Energetica

D
D
D
D
D
D
D
D
D
Anno di costruzione:
2006
Riscaldamento:
Autonomo
Tipo impianto:
A radiatori
Tipo alimentazione:
Metano

Ti interessa visionare l'immobile?

Fissa un appuntamento  Fissa un appuntamento

Richiedi informazioni

Clicca su Leggi per aprire l'informativa
* Questi campi sono obbligatori

Calcola il tuo mutuo

Semplice e senza impegno
Anticipo

( % )
Mutuo

( % )

pochi semplici passi

inserisci i tuoi dati
Questionario completato
Grazie per aver richiesto un appuntamento senza impegno con un nostro Consulente del Credito e Assicurativo.

Hai inserito correttamente tutti i dati necessari e a breve riceverai una e-mail con un link da convalidare per inviare i tuoi dati.
Affiliato
Studio Torre Srl
Via Carlo Cattaneo, 430 47522 Cesena (FC)

Il nostro staff


  • Greta Brunelli
    Affiliata

  • Filippo Di Fant
    Collaboratore

  • Alice Gardini
    Coordinatrice

  • Enea Ricci
    Collaboratore

  • Manuel Rizzo
    Collaboratore
Via Carlo Cattaneo, 430 47522 Cesena (FC)
Zona: Torre del Moro - Martorano - Pievesestina - Diegaro - San Vittore - Borello - Santa Maria Nuova
Mostra su mappa
Orari: Lun-Ven 9:00-13.00/15:30-20.00 Sab 9:00-13.00
Affiliato
Studio Torre Srl
Via Carlo Cattaneo, 430 47522 Cesena (FC)

2026 Tecnocasa Franchising S.p.A. - P. IVA 08365160152 - Via Monte Bianco 60/A 20089 Rozzano (MI). Ogni agenzia ha un proprio titolare ed è autonoma. Privacy policy | Policy utilizzo | Cookie policy